
知东莞APP

东莞广播电视台
微信公众号

东莞阳光网
微信公众号

莞视频

东莞电台
微信公众号

东莞阳光网
抖音号

东莞阳光网
视频号

东莞地产圈

阳光教育通

莞味主理人

家乡好物

Dongguan Today
青云境楼盘不按报规总平面图施工,涉嫌虚假宣传
用户DaQOML
来自:东莞市 发布日期2025-12-12 17:21:07
状态:
待处理
编号:556485
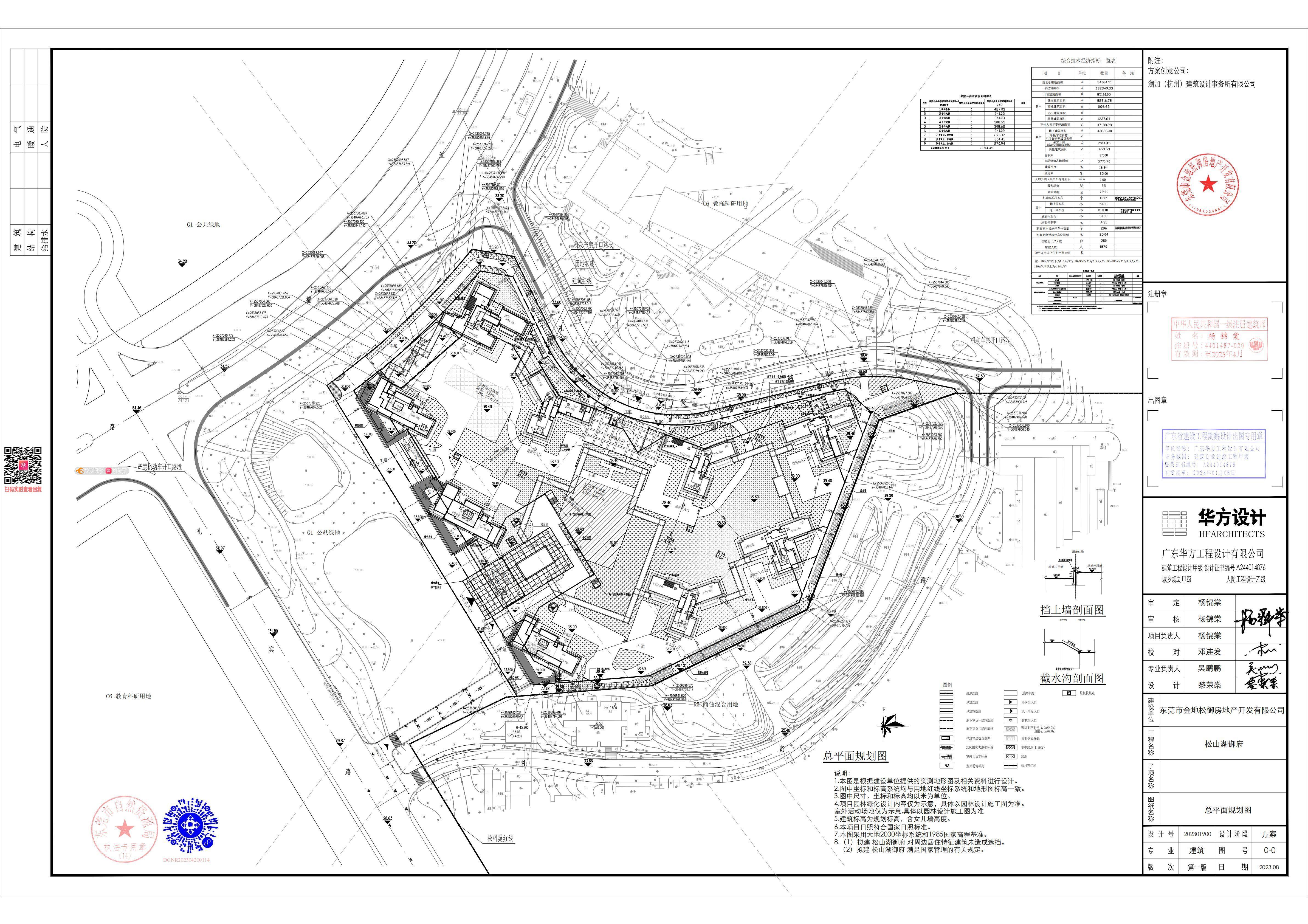
根据东莞市自然资源局网站的业务公示系统信息,金地青云境项目(松山湖御府)总平面规划图明确列示4号住宅楼与3号、5号住宅楼有连廊链接(如图2红色标注部分),以及开发商的宣传示意图(如图3红框部分)也有明确标注连廊。目前开发商明确告知实际开发建设将不设置连廊,理由为沙盘上没有。难道视报规文件如废纸一张?住建工作人员以我要问政:市党政机关根据东莞市自然资源局网站的业务公示系统信息,金地青云境项目(松山湖御府)总平面规划图明确列示4号住宅楼与3号、5号住宅楼有连廊链接(如图2红色标注部分),以及开发商的宣传示意图(如图3红框部分)也有明确标注连廊。目前开发商明确告知实际开发建设将不设置连廊,理由为沙盘上没有。难道视报规文件如废纸一张?住建工作人员以沙盘展示作为验收标准?要求政府部门严查严处!按规验收!
0参与
0评论

知东莞APP

东莞广播电视台
微信公众号

东莞阳光网
微信公众号

莞视频

东莞电台
微信公众号

东莞阳光网
抖音号

东莞阳光网
视频号

东莞地产圈

阳光教育通

莞味主理人

家乡好物

Dongguan Today